网站主页
关于吉瑞
董事长致辞
企业简介
卓越管理
资质荣誉
办公环境
车间装备
产品展示
制粒系列
干燥系列
混合系列
周转系列
清洗系列
配套系列
换热器
新闻动态
成功案例
jnty com-(中国)科技公司
您现在所在的位置:
首页
>
产品展示
>
干燥系列
> GGD高真空干燥箱
制粒系列
jnty com-(中国)科技公司
GHL高效湿法混合制粒机
DFL多功能制粒包衣机
FL沸腾干燥制粒机
干燥系列
闭路沸腾干燥机
FG沸腾干燥机
YZG/FZG真空干燥机
GGD高真空干燥箱
GZL立式真空振动流动干燥机
GZW卧式振动真空干燥机
SZG双锥回转真空干燥机
ZLG中药浸膏喷雾干燥机
DWT带式干燥机
DW带式干燥机
XF沸腾干燥机
GM百级干热灭菌柜
CT/CT-C热风循环烘箱
混合系列
ZTH快夹式全自动混合机
SYH高效三维运动混合机
DTH单立柱全自动提升料斗混合机
FH方锥混合机
EYH二维运动混合机
VH系列V型混合机
WHJ实验室料斗混合机
DSH系列锥形双螺杆螺旋混合机
周转系列
YDX料桶提升加料机
YYT移动伸缩式提升加料机
NTG固定提升加料机
YTZ液压提升整料转料机
ZSL-III系列真空上料机
CYT层间液压提升机
ZLT混合周转料桶
清洗系列
QXZ系列全自动清洗站系统
TQXZ型单柱提升清洗机
QXJ多用途清洗机
YQ移动清洗机
配套系列
ZS振动筛粉机
FZ粉碎整粒机
YK160摇摆式颗粒机
30B系列吸尘粉碎机组
换热器
碳化硅列管换热器
可拆式螺旋螺纹管换热器
螺旋螺纹管换热器
jnty com-(中国)科技公司
联系人:王总
电话:0510-86184255
传真:0510-86173899
E-mail:jyjirui88@163.com
网址:www.jyjirui.cn
地址:江阴南闸东盟科技园东盟路8号
GGD高真空干燥箱
GGD高真空干燥箱
高真空度
空载极限真空(气压)1.3~13Pa(0.01~0.1托)
高洁净
全部材质用“304”或“316L”制作,表面磨平抛光。可全部在100级洁净间内使用,也可部分置于100级洁净间内使用,为此装有专用隔离板,如图中之“3”。
低温快干
溶剂在高真空状态下容易气化或升华。
国内首创
本系列产品仿制国外同类产品,结合国产零配件的特点和标准,精心设计制作,价格仅为同类进口产品的十分之一。
完全接“GMP”规范设计、制作
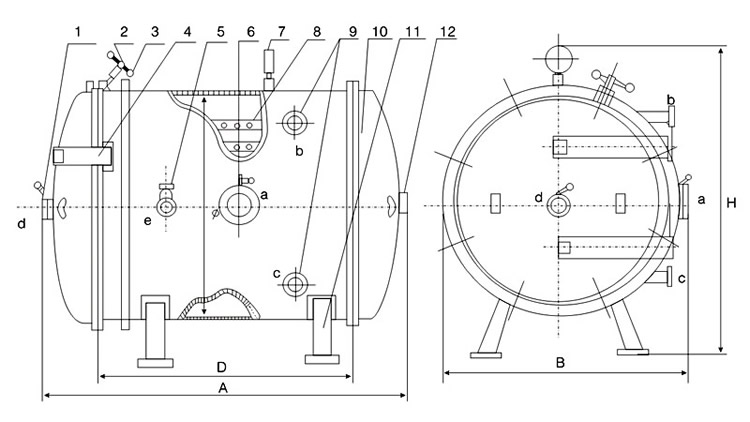
1 放空口阀门 2 锁紧装置 3 隔墙板 4 手臂 5 测压口阀门 6 抽气口阀门
7 温度计 8 烘架 9 进出热水口法兰 10 箱体 11 腿 12 铭牌
技术参数
本公司可按用户特殊要求定制生产,如有变动,恕不预先通知!
接口表
本公司可按用户特殊要求定制生产,如有变动,恕不预先通知!
返回目录
相关产品:
GZL立式真空振动流动干燥机
GZW卧式振动真空干燥机
SZG双锥回转真空干燥机
ZLG中药浸膏喷雾干燥机
DWT带式干燥机
Copyright (c) 2015 jnty com-(中国)科技公司.All rights reserved.
分享到: